Ausgezeichnetes Designhaus
Ausgezeichnetes Designhaus
Das Meisterstück 2022: Designhaus in Ellbach
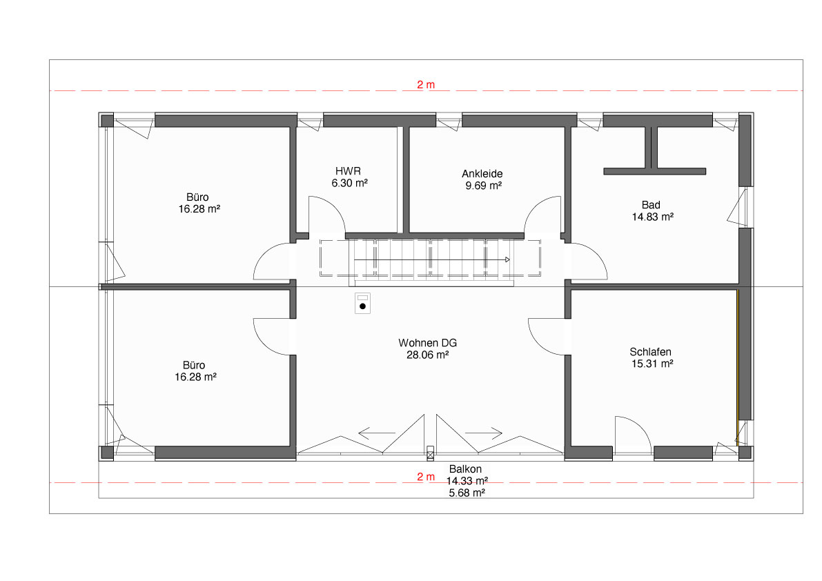
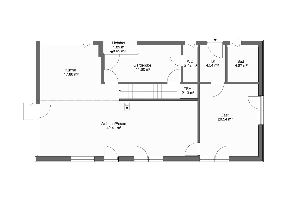
Das „Ausgezeichnete Designhaus – Ellbach“ ist ein Paradebeispiel dafür, wie elegantes Design und nachhaltiger Holzbau auf höchstem Niveau miteinander verschmelzen können. Dieses exklusive Designhaus wurde 2022 als Meisterstück ausgezeichnet und steht für eine zeitlose Architektur, die Ästhetik und Funktionalität vereint. Die klaren Linien und großzügigen Fensterflächen eröffnen einen beeindruckenden Blick auf die umliegende Natur und holen das Licht in jeden Raum.
Ein besonderes Merkmal dieses Holzhaus-Designs ist die perfekte Balance zwischen modernen Elementen und der traditionellen Handwerkskunst. Natürliche Materialien schaffen nicht nur ein gesundes Wohnklima, sondern verleihen dem Designhaus auch eine unverwechselbare Wärme. Wer ein Designhaus kaufen möchte, das Luxus und Naturverbundenheit verkörpert, findet in diesem Projekt eine perfekte Inspiration.
Eleganz und Nachhaltigkeit vereint
Eleganz und Nachhaltigkeit vereint
Ein Designhaus, das Maßstäbe setzt
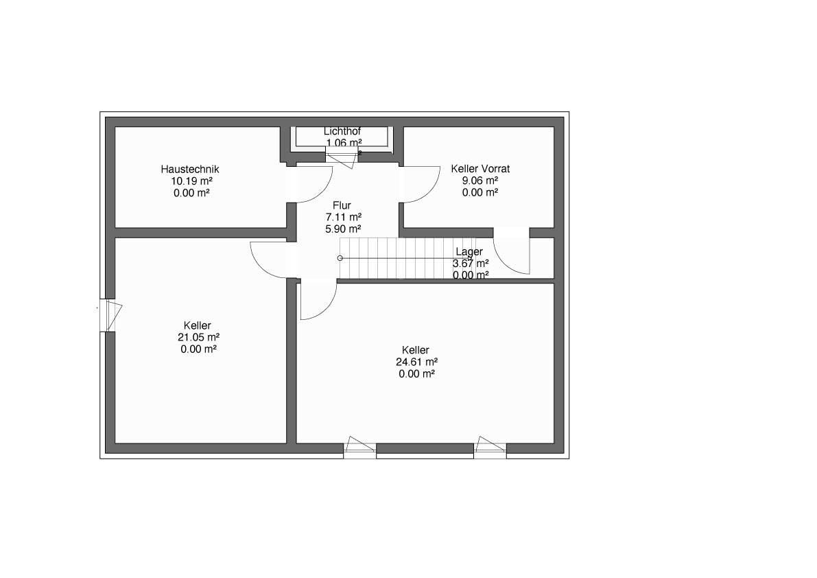
Ein Designhaus zu bauen, bedeutet weit mehr als nur einen Entwurf zu verwirklichen – es ist eine Reise. Das „Ausgezeichnete Designhaus – Ellbach“ begann mit einer präzisen Planung durch erfahrene Architekten, die den Wunsch nach einem harmonischen Zusammenspiel von Holz und Design konsequent umsetzten. Vom ersten Entwurf bis zur Schlüsselübergabe durchlief das Projekt sorgfältig abgestimmte Schritte, um den höchsten Ansprüchen gerecht zu werden.
Jeder Schritt des Bauprozesses, von der individuellen Planung bis zur Montage vor Ort, wurde sorgfältig koordiniert, um das Designhaus architektonisch und baulich zu perfektionieren. Die Verwendung hochwertiger, regionaler Materialien trägt dazu bei, dass dieses Luxushaus nicht nur optisch, sondern auch ökologisch überzeugt. So wurde es zu einem beispielhaften Designhaus, das durch Nachhaltigkeit und herausragende Architektur glänzt.


Jetzt beraten lassen!
Ein eigenes Zuhause ist ein besonderer Ort – ein Raum, der ganz auf Ihre Wünsche abgestimmt ist. Mit GRUBER.HAUS begleiten wir Sie auf dem Weg zu Ihrem maßgeschneiderten Holzhaus. Vom ersten Entwurf bis zur schlüsselfertigen Übergabe stehen Ihre Anforderungen im Mittelpunkt.
Möchten Sie mehr über unsere Projekte, Villen, Holzhäuser oder Wohnungen erfahren? Nutzen Sie den passenden Kontakt und einer unserer Experten wird sich zeitnah mit Ihnen in Verbindung setzen. Gemeinsam planen und realisieren wir Ihr individuelles Holzhaus, genau nach Ihren Vorstellungen.









