Das Einfamilienhaus aus Holz
Das Einfamilienhaus aus Holz
Leben in einem Holzhaus
Das Einfamilienhaus aus Holz in Neubiberg verbindet Luxus und Natur auf harmonische Weise. Für alle, die Wert auf stilvolles Wohnen und erstklassige Qualität legen, bietet dieses exklusive Zuhause ein einzigartiges Wohngefühl. Die warmen Holzelemente erzeugen eine behagliche Atmosphäre, die zum Entspannen einlädt, während die großen Fensterfronten für lichtdurchflutete Räume sorgen und einen fließenden Übergang zur umgebenden Natur schaffen.
In diesem Luxushaus wird das Zusammenspiel aus modernem Design und traditioneller Handwerkskunst deutlich. Der Einsatz natürlicher Materialien trägt nicht nur zur Behaglichkeit bei, sondern fördert auch ein gesundes Raumklima. Wer hier lebt, spürt die Wärme des Holzes und erlebt die Natur im Alltag. Das Einfamilienhaus als luxuriöses Holzhaus zeigt, dass Nachhaltigkeit und Luxus kein Widerspruch sein müssen, sondern sich perfekt ergänzen.
Sonne tanken und kluge Architektur bestaunen
Sonne tanken und kluge Architektur bestaunen
Die Faszination des Neubiberger Einfamilienhauses erleben
Mit diesem Projekt im Münchner Südosten haben wir ein Einfamilienhaus realisiert, das höchste Ansprüche an Design und Nachhaltigkeit erfüllt.
Die vorvergraute Holzfassade fügt sich perfekt in die grüne Umgebung ein und schafft ein behagliches Wohnklima.
Die harmonische Verbindung von Holz und Glas schafft eine warme Atmosphäre, während großzügige Terrassen und große Fensterfronten Innen- und Außenbereiche ideal verbinden.
Dieses Haus kombiniert elegante Holzverkleidung mit großen Glasflächen für lichtdurchflutete Räume und ein offenes Wohngefühl.
Seine geradlinige Gestaltung und hochwertigen Materialien machen es zu einem Vorbild für modernes, umweltfreundliches Bauen, das Zukunft und Tradition harmonisch vereint.
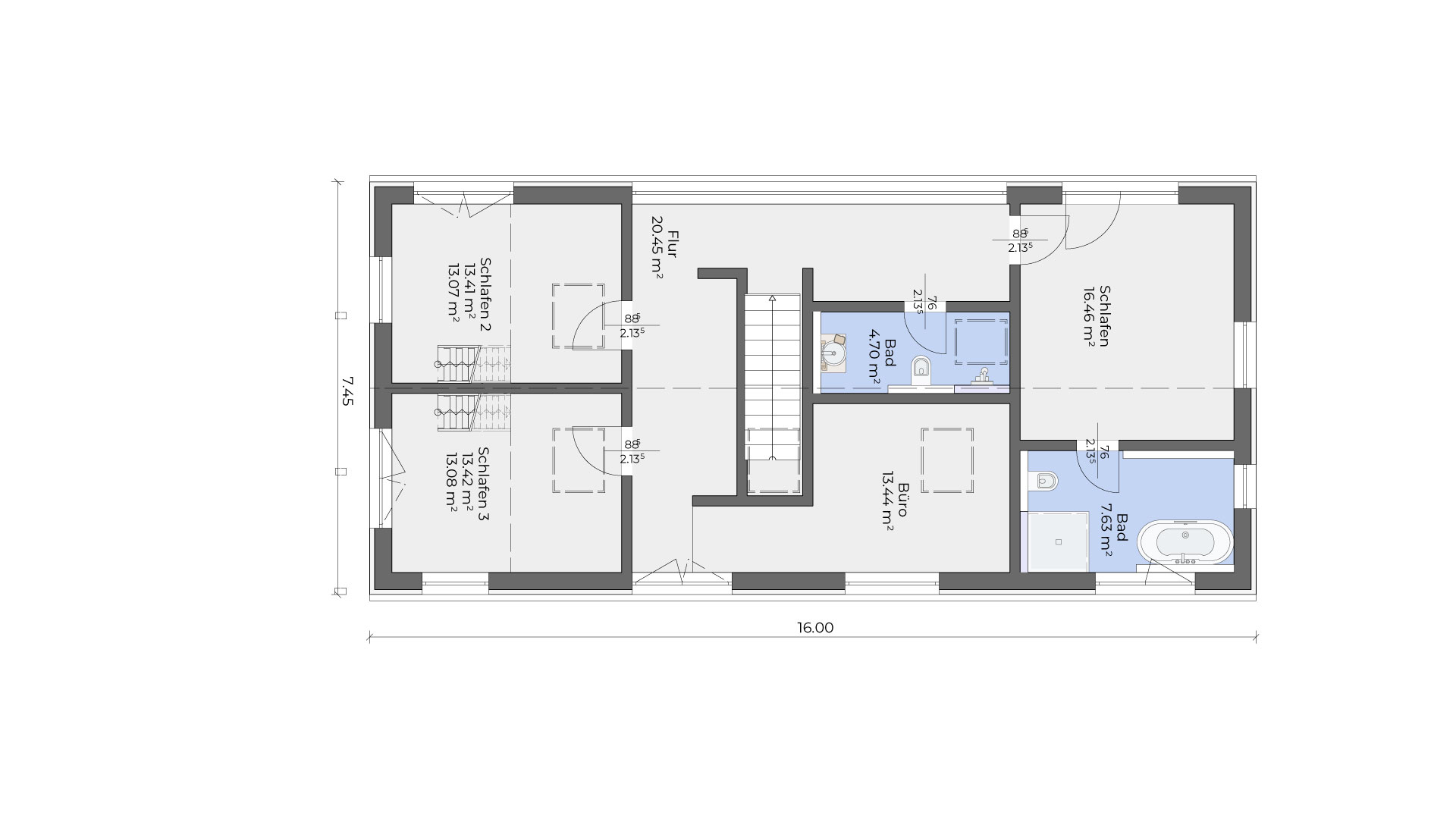
Der offene Wohnbereich mit Kamin sorgt für ein stilvolles Ambiente, während die großzügigen Schlaf- und Badezimmer durch exklusive Materialien und luxuriöse Details überzeugen. Von der luxuriösen Ausstattung bis hin zur durchdachten Raumaufteilung zeigt das Holzhaus, wie zeitgemäßer Wohnkomfort und traditionelle Baukunst harmonieren können. Wer ein Luxushaus innen erleben möchte, findet hier Inspiration und Wohnkultur auf höchstem Niveau.


Das Einfamilienhaus in Holzbauweise bietet zahlreiche Vorteile, die es zu einem besonderen Projekt machen. Holz ist nicht nur ein nachhaltiges Baumaterial, sondern auch extrem langlebig und energieeffizient. Es trägt zu einem gesunden Raumklima bei, da es die Luftfeuchtigkeit regulieren kann und einen angenehmen Duft verströmt.
Dieses Einfamilienhaus zeigt, dass traditionelle Handwerkskunst und moderne Architektur in Deutschland eine perfekte Symbiose bilden können. Wer ein Einfamilienhaus der Luxusklasse in Deutschland kaufen möchte, findet in Neubiberg ein Objekt, das in puncto Design und Bauqualität neue Maßstäbe setzt. Ein echtes Traumhaus, das durch die Vorteile der Holzbauweise lange Freude bereitet und zugleich einen Beitrag zum nachhaltigen Bauen leistet.
Jetzt beraten lassen!
Ein eigenes Zuhause ist ein besonderer Ort – ein Raum, der ganz auf Ihre Wünsche abgestimmt ist. Mit GRUBER.HAUS begleiten wir Sie auf dem Weg zu Ihrem maßgeschneiderten Holzhaus. Vom ersten Entwurf bis zur schlüsselfertigen Übergabe stehen Ihre Anforderungen im Mittelpunkt.
Möchten Sie mehr über unsere Projekte, Villen, Holzhäuser oder Wohnungen erfahren? Nutzen Sie den passenden Kontakt und einer unserer Experten wird sich zeitnah mit Ihnen in Verbindung setzen. Gemeinsam planen und realisieren wir Ihr individuelles Holzhaus, genau nach Ihren Vorstellungen.









