Exklusives Massivholzhaus
Exklusives Massivholzhaus
Nachhaltige Bauweise für hohen Wohnkomfort
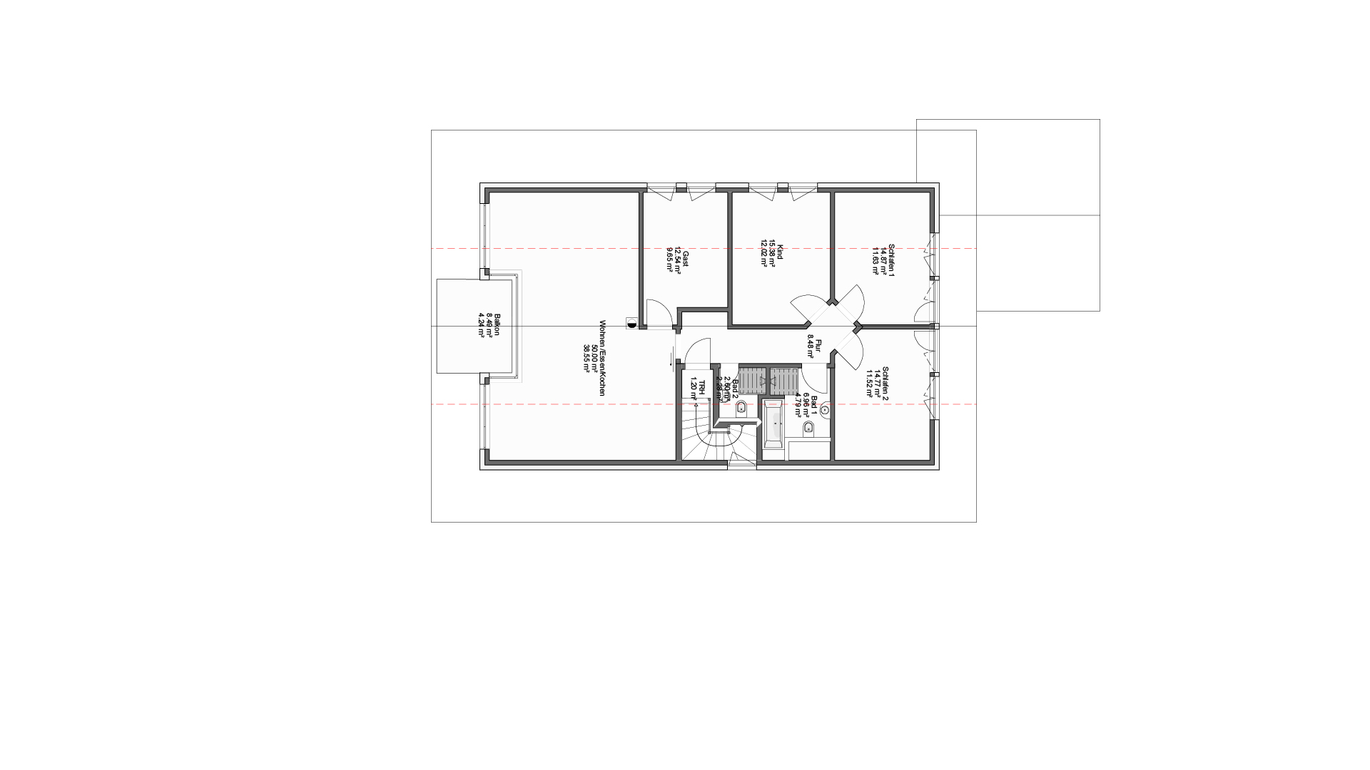
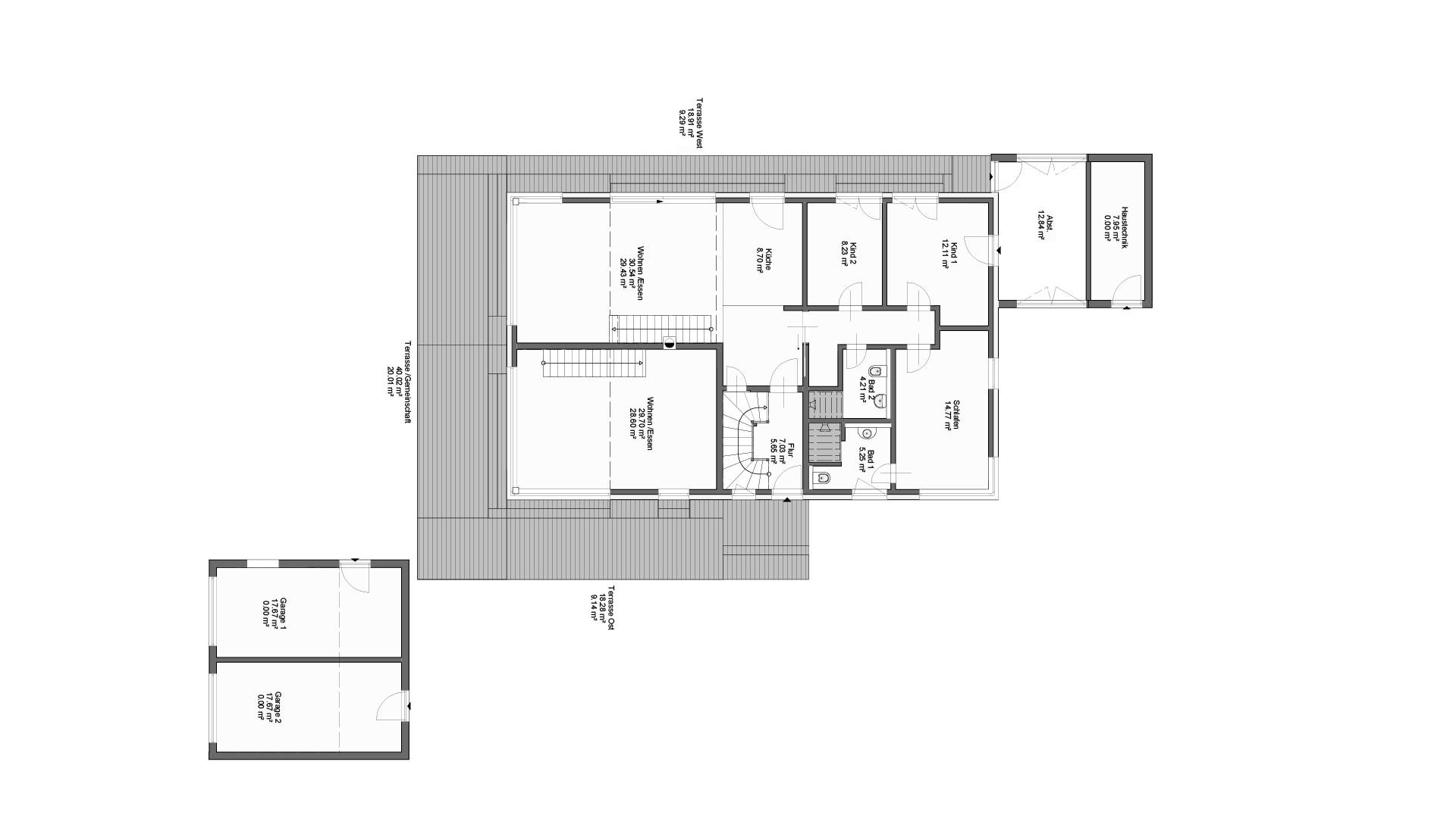
Jede der drei Wohnungen in diesem besonderen Massivholzhaus überzeugt mit einem einzigartigen Ausblick auf den Schliersee und die umgebende Natur. Die Massivholzwände und die naturbelassene Lärchenfassade unterstreichen die Verbundenheit zur Region und schaffen eine warme, einladende Atmosphäre in den Innenräumen. Aufgrund der Lage nahe dem See und im Überschwemmungsgebiet musste das Gebäude auf speziellen Energiepfählen gegründet werden. Diese Bauweise ermöglicht nicht nur eine stabile Fundierung, sondern liefert dank der integrierten Wärmepumpe auch eine nachhaltige und effiziente Wärmeerzeugung. Ein modernes Massivholzhaus wie dieses vereint höchste bauliche Qualität mit innovativer Energiegewinnung und harmoniert perfekt mit der umgebenden Landschaft. GRUBER.HAUS schafft hier einen Ort zum Wohlfühlen, der das Beste aus Massivholz und zukunftsorientierter Technik verbindet.
Einzigartiges Massivholzhaus in Seenähe
Einzigartiges Massivholzhaus in Seenähe
Strukturen und hervorragende Dämmung
Die Bauweise eines Massivholzhauses bringt eine Vielzahl an Vorteilen mit sich und ist eine ideale Lösung für nachhaltiges und gesundes Wohnen. Im Unterschied zu anderen Holzbausystemen bestehen die tragenden Elemente eines Massivholzbaus vollständig aus Holz, was ein unvergleichliches Raumklima erzeugt. Diese massiven Holzstrukturen regulieren die Feuchtigkeit im Raum auf natürliche Weise und bieten zudem hervorragenden Schallschutz und Wärmedämmung. Durch den mehrschichtigen Massivholz-Wandaufbau entsteht ein stabiles und langlebiges Gebäude, das auf ganz natürliche Weise isoliert.
In diesem Massivholzhaus kommen alle Vorteile dieser Bauweise zusammen: Die Massivholzwände sorgen nicht nur für die typische Massivholz-Ästhetik, sondern bieten dank ihrer thermischen Speicherkapazität einen zuverlässigen Wärmeschutz zu jeder Jahreszeit. Ein Massivholz-Fertighaus wie dieses verbindet ökologischen Mehrwert mit moderner Bauweise und ist ein Paradebeispiel für nachhaltiges Bauen in Bayern. Wer ein Massivhaus bauen möchte, wird hier Inspiration und zukunftsweisende Konzepte finden.


Nachhaltigkeit bedeutet bei GRUBER.HAUS, bewusst mit Ressourcen umzugehen und einen Lebensraum zu schaffen, der im Einklang mit der Natur steht. Holz als Baustoff ist für uns die ideale Wahl: Es ist regional verfügbar, nachwachsend und speichert CO₂ über die gesamte Lebensdauer des Gebäudes hinweg. Ein Massivholzhaus ist nicht nur langlebig, sondern unterstützt aktiv ein gesundes Raumklima, da es Feuchtigkeit aufnimmt und wieder abgibt. Das natürliche Wohnklima und die besondere Ästhetik eines Holzhauses lassen das Zuhause zu einem echten Rückzugsort werden.
Mit einem durchdachten Massivholz-Wandaufbau setzen wir zudem auf höchste Energieeffizienz und Behaglichkeit. Durch die Wahl eines Massivholzhauses tragen wir gemeinsam mit unseren Bauherren dazu bei, die Zukunft umweltfreundlicher zu gestalten. Für uns ist Holz nicht nur ein Baustoff – es ist Ausdruck einer Lebensweise, die Nachhaltigkeit und Wohnqualität verbindet.
Jetzt beraten lassen!
Ein eigenes Zuhause ist ein besonderer Ort – ein Raum, der ganz auf Ihre Wünsche abgestimmt ist. Mit GRUBER.HAUS begleiten wir Sie auf dem Weg zu Ihrem maßgeschneiderten Holzhaus. Vom ersten Entwurf bis zur schlüsselfertigen Übergabe stehen Ihre Anforderungen im Mittelpunkt.
Möchten Sie mehr über unsere Projekte, Villen, Holzhäuser oder Wohnungen erfahren? Nutzen Sie den passenden Kontakt und einer unserer Experten wird sich zeitnah mit Ihnen in Verbindung setzen. Gemeinsam planen und realisieren wir Ihr individuelles Holzhaus, genau nach Ihren Vorstellungen.









